Skip To Content

53 Cooper Street Extension

Wakefield, MA 01880
  • $1,225,000
  • STATUS: Under Agreement
  • MLS #: 73441464
Pending
UPDATED: 33 min ago
$1,225,000
  • 3
    BEDS
  • 0.56
    ACRES
  • 2
    BATHS
  • 1
    1/2 BATHS
  • 3,364
    SQFT
  • $364
    $/SQFT
Neighborhood:
Type:
Single-Family Home
Built:
2007
County:
Area:

School Information

Elementary School:
Middle School:
Gms
High School:
Listing courtesy of Laurie Hunt of North Star RE Agents, LLC.

Description

2007-originally built as the builder's personal residence this thoughtfully crafted home offers quality, comfort & style in private serene setting. Beautiful stonework, lush perennials & charming farmers porch lead to welcoming foyer. The open-concept design has large kitchen w/ abundant storage & counter space seamlessly connected to dining area w/ soaring ceilings and large living room w/gas FP. Spacious 1st fl ensuite w/ cozy gas FP, oversize walk-in closet, 1st floor powder room & laundry complete main level. Upstairs find 2 bedrooms, full bath & a versatile space for home office or climate-controlled storage. Walk-out basement offers add'l finished space w/ ample raw storage & direct access 2 car garage. Exterior has a covered patio w/ ceiling fan, built-in speakers, gas hookup for grill & a tranquil water garden perfect for relaxing. Located under 1 mile from Greenwood & Melrose Highlands commuter rail stops, close to bus, shops & restaurants in both Wakefield & Melrose.

Monthly Payment Calculator



The property listing data and information set forth herein were provided to MLS Property Information Network, Inc. from third party sources, including sellers, lessors and public records, and were compiled by MLS Property Information Network, Inc. The property listing data and information are for the personal, non commercial use of consumers having a good faith interest in purchasing or leasing listed properties of the type displayed to them and may not be used for any purpose other than to identify prospective properties which such consumers may have a good faith interest in purchasing or leasing. MLS Property Information Network, Inc. and its subscribers disclaim any and all representations and warranties as to the accuracy of the property listing data and information set forth herein. Data last updated 2025-11-08T23:04:05.613.
www.coastalnewenglandproperties.com/homes/168681684
Print Image

53 Cooper Street Extension Wakefield, MA 01880

  • Price: $1,225,000
  • Status: Under Agreement
  • On Site: Days
  • Updated: 33 min ago
  • MLS #: 73441464
3
Beds
2
Baths
1
½ Baths
0.56
Acres
3,364
SQFT
$364
$/SQFT
2007
Built
Neighborhood:
Greenwood
County:
Middlesex
Area:
Greenwood
Elementary School:
Check W/ Superintendent
Middle School:
Gms
High School:
Wmhs
Property Description
2007-originally built as the builder's personal residence this thoughtfully crafted home offers quality, comfort & style in private serene setting. Beautiful stonework, lush perennials & charming farmers porch lead to welcoming foyer. The open-concept design has large kitchen w/ abundant storage & counter space seamlessly connected to dining area w/ soaring ceilings and large living room w/gas FP. Spacious 1st fl ensuite w/ cozy gas FP, oversize walk-in closet, 1st floor powder room & laundry complete main level. Upstairs find 2 bedrooms, full bath & a versatile space for home office or climate-controlled storage. Walk-out basement offers add'l finished space w/ ample raw storage & direct access 2 car garage. Exterior has a covered patio w/ ceiling fan, built-in speakers, gas hookup for grill & a tranquil water garden perfect for relaxing. Located under 1 mile from Greenwood & Melrose Highlands commuter rail stops, close to bus, shops & restaurants in both Wakefield & Melrose.
Exterior Features

Architectural Style Colonial Attached Garage YN Yes Carport YN No Construction Materials Frame Covered Spaces 2 Exterior Features PorchPatioCovered Patio/DeckSprinkler SystemFenced YardOutdoor Gas Grill Hookup Fencing Fenced Garage YN Yes Open Parking YN Yes Parking Features AttachedPaved DriveOff StreetDrivewayPaved Parking Total 4 Patio And Porch Features PorchPatioCovered Property Attached YN No Road Frontage Type Private RoadDead End Roof Shingle Spa YN No Waterfront YN No

Interior Features

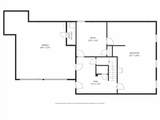
Appliances Water HeaterTankless Water HeaterOvenDishwasherDisposalTrash CompactorMicrowaveRangeRefrigeratorFreezerWasherDryerVacuum System Basement Full Bedroom2 Dimensions Length 15.9 Bedroom2 Dimensions Width 12.11 Bedroom2 Features Flooring - Hardwood Bedroom2 Level Second Bedroom3 Dimensions Length 13.1 Bedroom3 Dimensions Width 12.11 Bedroom3 Features Flooring - Hardwood Bedroom3 Level Second Building Area Total 3364 Cooling Central AirDual Cooling YN Yes Cooling Zones 2 Dining Room Dimensions Length 15.9 Dining Room Dimensions Width 10.1 Dining Room Features Flooring - HardwoodOpen Floorplan Dining Room Level MainFirst Door Features Insulated Doors Fireplace Features Master Bedroom Fireplace YN Yes Fireplaces Total 2 Flooring WoodTileFlooring - Wall to Wall CarpetFlooring - Stone/Ceramic Tile Foundation Details Concrete Perimeter Heat Zones 2 Heating Forced AirPropaneLeased Propane Tank Heating YN Yes Interior Features Bonus RoomHome OfficeCentral VacuumWired for SoundHigh Speed Internet Kitchen Dimensions Length 17.1 Kitchen Dimensions Width 14.2 Kitchen Features Flooring - HardwoodCountertops - Stone/Granite/SolidKitchen IslandExterior AccessOpen FloorplanStainless Steel AppliancesGas Stove Kitchen Level MainFirst Laundry Features First FloorElectric Dryer HookupWasher Hookup Lead Paint None Living Room Dimensions Length 18.8 Living Room Dimensions Width 15.9 Living Room Features Flooring - HardwoodOpen FloorplanRecessed LightingGas Stove Living Room Level MainFirst Main Level Bathrooms 1 Main Level Bedrooms 1 Master Bathroom Features Yes Master Bedroom Dimensions Length 24.7 Master Bedroom Dimensions Width 15.8 Master Bedroom Features Bathroom - FullBathroom - Double Vanity/SinkWalk-In Closet(s)Flooring - HardwoodRecessed Lighting Master Bedroom Level MainFirst Office Dimensions Length 14.2 Office Dimensions Width 12.5 Office Features Flooring - Stone/Ceramic Tile Office Level Basement Rooms Total 8 Window Features Insulated Windows

Property Features

Association YN No Community Features Public TransportationShopping Contingency Pending P&S Disclosures Private road constructed apx 2007 when home was builttown plows road to end by drivewaytrash/recycle is picked up in front of the home. Owners have never used the security system. Owners used Verizon Fioshome also wired for Comcast. Current owners do not pay a fee for leased propane tank. Electric 200+ Amp Service Home Warranty YN No Property Sub Type Single Family Residence Security Features Security System Senior Community YN No Sewer Public Sewer Tax Annual Amount 13741 Tax Year 2025 Utilities for Gas Rangefor Electric Ovenfor Electric DryerWasher HookupOutdoor Gas Grill Hookup Water Source Public Year Built Details Actual Year Round Yes Zoning SR

Listing information © 2025 MLS Property Information Network. All information is deemed reliable but should be independently verified.
Listing provided courtesy of Laurie Hunt of North Star RE Agents, LLC: 781-587-2942.


The property listing data and information set forth herein were provided to MLS Property Information Network, Inc. from third party sources, including sellers, lessors and public records, and were compiled by MLS Property Information Network, Inc. The property listing data and information are for the personal, non commercial use of consumers having a good faith interest in purchasing or leasing listed properties of the type displayed to them and may not be used for any purpose other than to identify prospective properties which such consumers may have a good faith interest in purchasing or leasing. MLS Property Information Network, Inc. and its subscribers disclaim any and all representations and warranties as to the accuracy of the property listing data and information set forth herein. Data last updated 2025-11-08T23:04:05.613.
 
https://bt-photos.global.ssl.fastly.net/mlspin/orig_boomver_1_73441464_2.jpg https://bt-photos.global.ssl.fastly.net/mlspin/orig_boomver_1_73441464_2.jpg https://bt-photos.global.ssl.fastly.net/mlspin/orig_boomver_1_73441464_2.jpg
Logo
Kinlin Grover Compass
45 Court Street
Plymouth MA, 02360
Listing courtesy of Laurie Hunt of North Star RE Agents, LLC.