Skip To Content

Lot 53 Prospect St

Wellesley, MA 02481
  • $2,211,302
  • STATUS: Sold
  • MLS #: 73351269
Sold - 06/10/2025
$2,211,302
SOLD - 06/10/2025
  • 4
    BEDS
  • 0.23
    ACRES
  • 3
    BATHS
  • 1
    1/2 BATHS
  • 3,503
    SQFT
  • $0
    $/SQFT
Neighborhood:
Type:
Single-Family Home
Built:
2025
County:

School Ratings & Info

Listing courtesy of Lynn Cohen of Team Impressa LLC.

Description

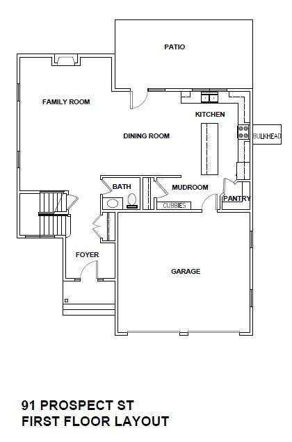
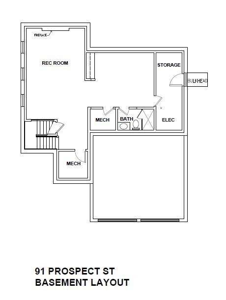
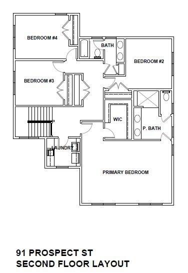
Absolutely gorgeous new construction that will meet all of your expectations. This home boasts an open floor plan and exquisite finishes. Meal prep will be a joy in the wonderful kitchen, complete with a large island, separate pantry and plenty of cabinets. It is adjacent to the mudroom with its cubbies and direct access to the garage, ideal for bringing the groceries home. Enjoy open sight lines to the spacious dining area and sumptuous family room. Retreat to the primary suite with custom built walk in closet and well appointed bath. Three additional second floor bedrooms means there's plenty of room for everyone. Lastly, don't miss the finished lower level rec room and full bath. All this luxury in a terrific location near restaurants, shops, public transportation and major highway. What else could you ask for??

Monthly Payment Calculator



The property listing data and information set forth herein were provided to MLS Property Information Network, Inc. from third party sources, including sellers, lessors and public records, and were compiled by MLS Property Information Network, Inc. The property listing data and information are for the personal, non commercial use of consumers having a good faith interest in purchasing or leasing listed properties of the type displayed to them and may not be used for any purpose other than to identify prospective properties which such consumers may have a good faith interest in purchasing or leasing. MLS Property Information Network, Inc. and its subscribers disclaim any and all representations and warranties as to the accuracy of the property listing data and information set forth herein. Data last updated 2026-03-10T14:04:04.187.
www.coastalnewenglandproperties.com/homes/161963834
Print Image

Lot 53 Prospect St Wellesley, MA 02481

  • Price: $2,199,000
  • Status: Sold
  • On Site: Days
  • Updated: 29 min ago
  • MLS #: 73351269
4
Beds
3
Baths
1
½ Baths
0.23
Acres
3,503
SQFT
$0
$/SQFT
2025
Built
Neighborhood:
Poets' Corner
County:
Norfolk
Property Description
Absolutely gorgeous new construction that will meet all of your expectations. This home boasts an open floor plan and exquisite finishes. Meal prep will be a joy in the wonderful kitchen, complete with a large island, separate pantry and plenty of cabinets. It is adjacent to the mudroom with its cubbies and direct access to the garage, ideal for bringing the groceries home. Enjoy open sight lines to the spacious dining area and sumptuous family room. Retreat to the primary suite with custom built walk in closet and well appointed bath. Three additional second floor bedrooms means there's plenty of room for everyone. Lastly, don't miss the finished lower level rec room and full bath. All this luxury in a terrific location near restaurants, shops, public transportation and major highway. What else could you ask for??
Exterior Features

Architectural Style Colonial Attached Garage YN Yes Carport YN No Color tuxedo Construction Materials Frame Covered Spaces 2 Exterior Features PatioSprinkler SystemScreens Garage YN Yes Lot Features Corner Lot Open Parking YN Yes Parking Features AttachedPaved DriveOff Street Parking Total 4 Patio And Porch Features Patio Property Attached YN No Road Frontage Type Public Roof Shingle Spa YN No Waterfront YN No

Interior Features

Appliances Electric Water HeaterRangeDishwasherMicrowaveRefrigeratorPlumbed For Ice Maker Basement FullPartially FinishedBulkhead Bedroom2 Dimensions Length 16 Bedroom2 Dimensions Width 11 Bedroom2 Features Flooring - Wood Bedroom2 Level Second Bedroom3 Dimensions Length 13 Bedroom3 Dimensions Width 12 Bedroom3 Features Flooring - Wood Bedroom3 Level Second Bedroom4 Dimensions Length 13 Bedroom4 Dimensions Width 11 Bedroom4 Features Flooring - Wood Bedroom4 Level Second Building Area Total 3503 Cooling Central Air Cooling YN Yes Cooling Zones 3 Dining Room Dimensions Length 15 Dining Room Dimensions Width 18 Dining Room Features Flooring - Wood Dining Room Level First Door Features Insulated Doors Family Room Dimensions Length 24 Family Room Dimensions Width 16 Family Room Features Flooring - Wood Family Room Level First Fireplace Features Family Room Fireplace YN Yes Fireplaces Total 2 Flooring PlywoodTileHardwood Foundation Details Concrete Perimeter Heat Zones 3 Heating CentralForced AirHeat PumpElectric Heating YN Yes Kitchen Dimensions Length 21 Kitchen Dimensions Width 12 Kitchen Features Flooring - WoodPantryCountertops - Stone/Granite/Solid Kitchen Level First Laundry Features Second FloorElectric Dryer HookupWasher Hookup Lead Paint None Master Bathroom Features Yes Master Bedroom Dimensions Length 23 Master Bedroom Dimensions Width 16 Master Bedroom Features Flooring - Wood Master Bedroom Level Second Rooms Total 9 Window Features Insulated WindowsScreens

Property Features

Accessibility Features No Association YN No Community Features Public TransportationShoppingParkGolfMedical FacilityHighway AccessHouse of WorshipPrivate SchoolPublic SchoolT-Station Contingency Pending P&S Current Financing Conv. Fixed Disclosures Real estate taxes for this property will determined by the town of Wellesley after closingProperty is an active construction site. Do not walk on the property without an appointment. Room sizes are approximate. Electric 220 Volts200+ Amp Service Home Warranty YN No Property Sub Type Single Family Residence Senior Community YN No Sewer Public Sewer Tax Annual Amount 10368 Tax Year 2024 Utilities for Electric Rangefor Electric Ovenfor Electric DryerWasher HookupIcemaker Connection Water Source Public Year Built Details Actual Zoning SR10

Listing information © 2026 MLS Property Information Network. All information is deemed reliable but should be independently verified.
Listing provided courtesy of Lynn Cohen of Team Impressa LLC: 617-831-2066.


The property listing data and information set forth herein were provided to MLS Property Information Network, Inc. from third party sources, including sellers, lessors and public records, and were compiled by MLS Property Information Network, Inc. The property listing data and information are for the personal, non commercial use of consumers having a good faith interest in purchasing or leasing listed properties of the type displayed to them and may not be used for any purpose other than to identify prospective properties which such consumers may have a good faith interest in purchasing or leasing. MLS Property Information Network, Inc. and its subscribers disclaim any and all representations and warranties as to the accuracy of the property listing data and information set forth herein. Data last updated 2026-03-10T14:04:04.187.
 
https://bt-photos.global.ssl.fastly.net/mlspin/orig_boomver_1_73351269_2.jpg https://bt-photos.global.ssl.fastly.net/mlspin/orig_boomver_1_73351269_2.jpg https://bt-photos.global.ssl.fastly.net/mlspin/orig_boomver_1_73351269_2.jpg
Logo
Kinlin Grover Compass
45 Court Street
Plymouth MA, 02360
Listing courtesy of Lynn Cohen of Team Impressa LLC.